Projects
Design
About
Projects
Design
About
KL
The Kitchen
Design Studio 6
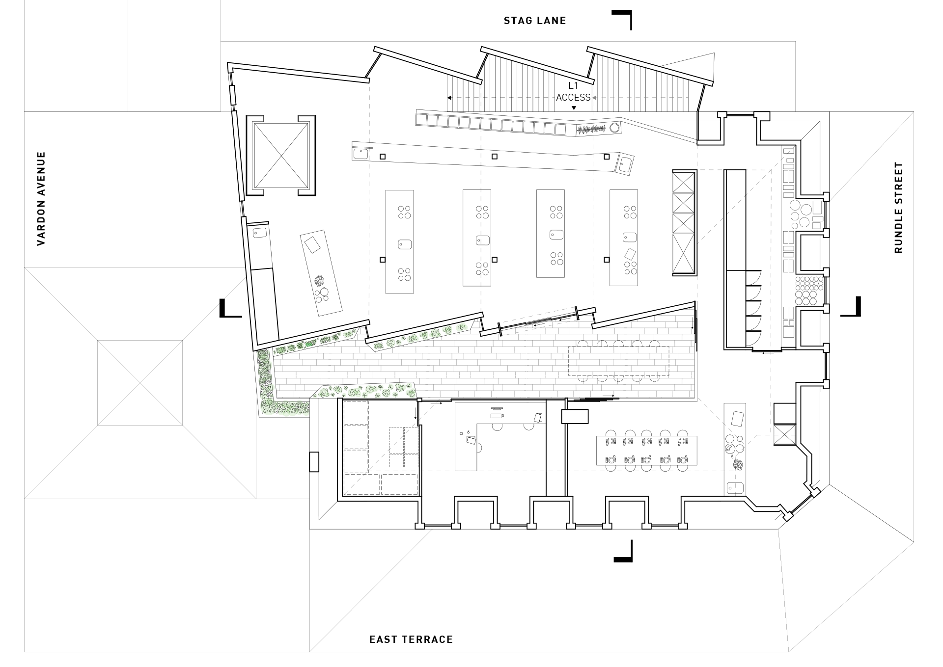
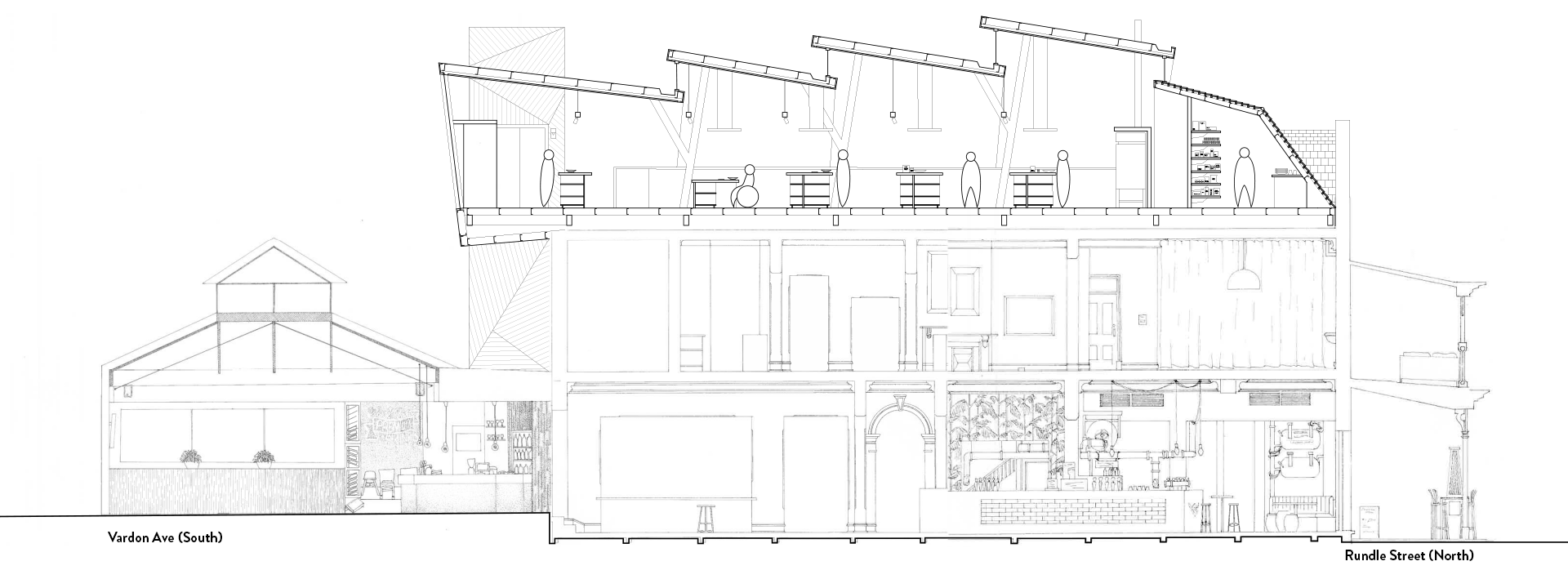
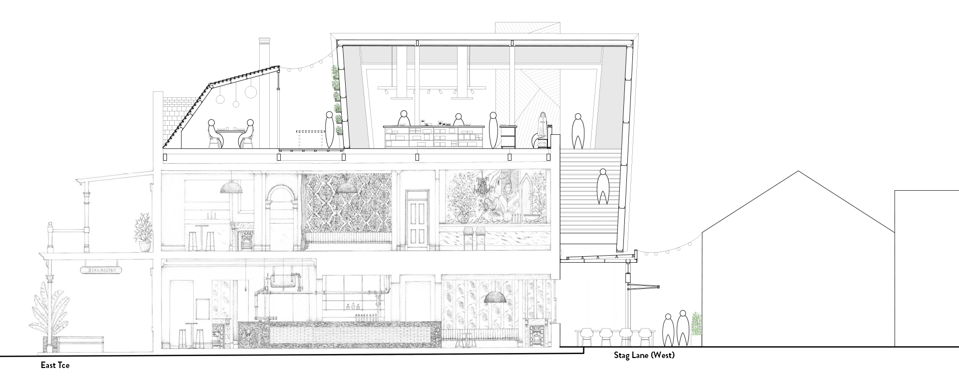
Stag Hotel Culinary Residence and Cooking School
Plan - Level 2
Vernadoc - East Elevation
↑
Back to Top