Site
Set amongst the dunes at 77 Bristow Smith Ave, Goolwa;
Refractions is a comfortable and spacious home to welcome
George and his family on holidays.
Refractions is a comfortable and spacious home to welcome
George and his family on holidays.
Driven by four key concepts: Fire, Refraction, Dunes and Future; this proposal is for a holiday home influenced by its context and a space that fits the family now, yet can adapt to suit the future. The idea of re-use was important to the client in this project. Fire was used in a metaphorical sense to strip back the old and allow new growth of the building. All the lightweight material of the existing structure have been removed leaving only the cream brick wall. It is then blackened by zinc cladding with parts of the original cream brick left as a memento to the old beach house. Timber cladding is used on the new building as a symbol of growth and when weathered ties in perfectly with the coastal
setting.
Refraction is the bending of light as it passes through water. Like looking down at your toes in the water at the beach, looking through the house, there is a subtle ‘bend’ away from the perfect square.
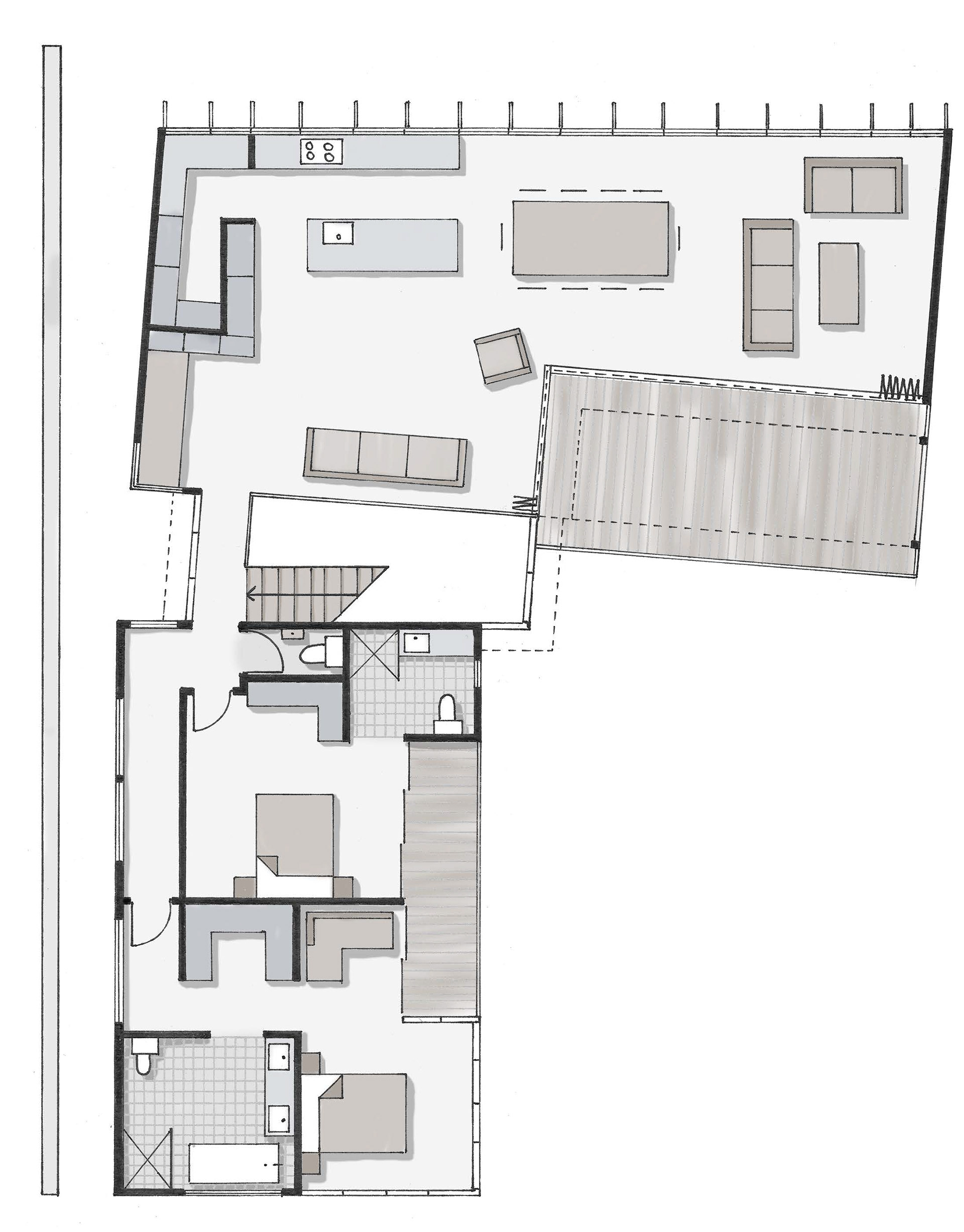
Both house and micro dwelling have a strong connection back to the dunes, through expansive south facing glazing, the deck at the back of the micro dwelling and the framed view as you enter down the side of the house.
The micro dwelling offers a small breakout space that can sleep extra guests or a place to unwind on the top deck looking over the rolling dunes. The external bedrooms on the ground floor allow for the space to be reconfigured to suit future needs which could possibly be a second residence. This space can also be isolated making the house feel less empty when the children don’t come along on holidays.
Ground
First
Section