Projects
Design
About
Projects
Design
About
KL
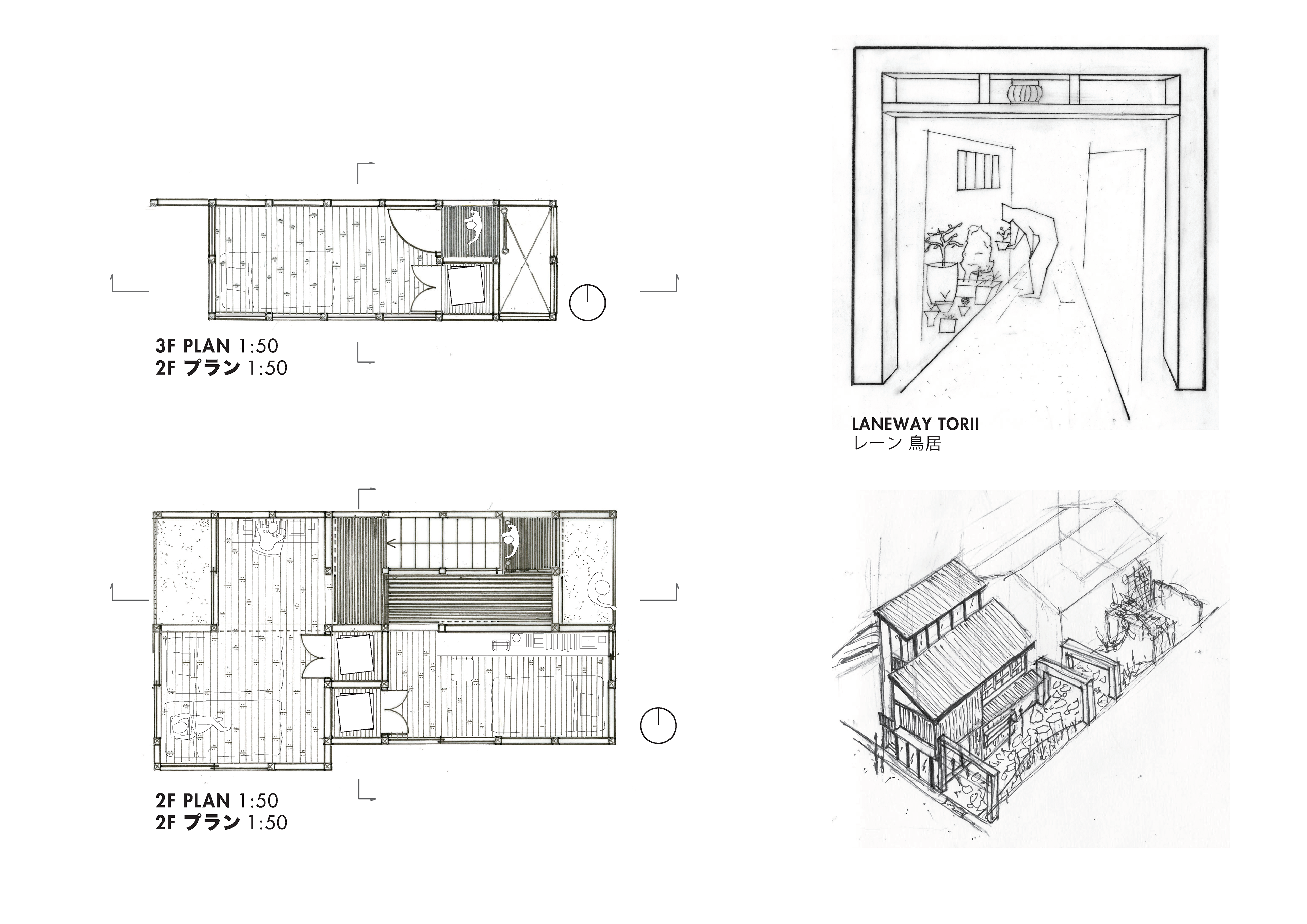
Osaka - Home
Study Tour September 2018
Cross cultural design studio in collaboration with Osaka City University
↑
Back to Top