A101 Master Site Plan
A103 Ground Plan
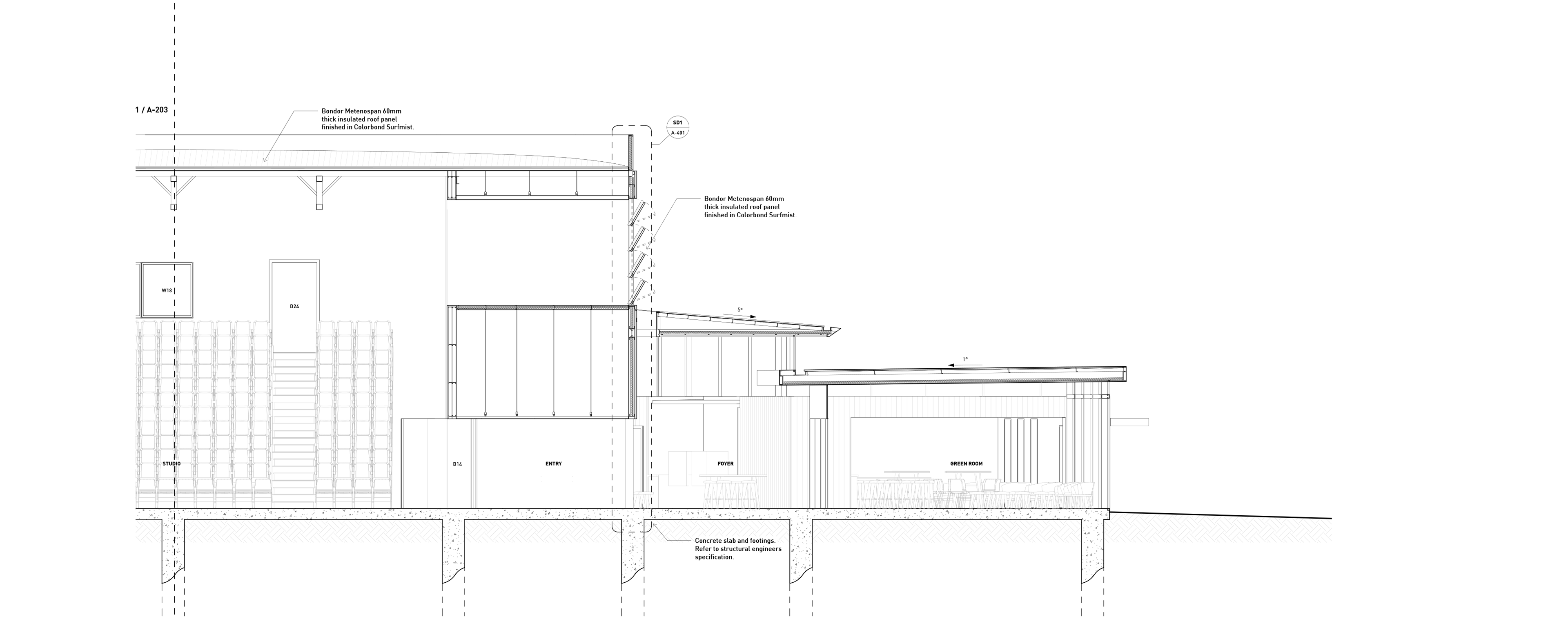
A202 Section A
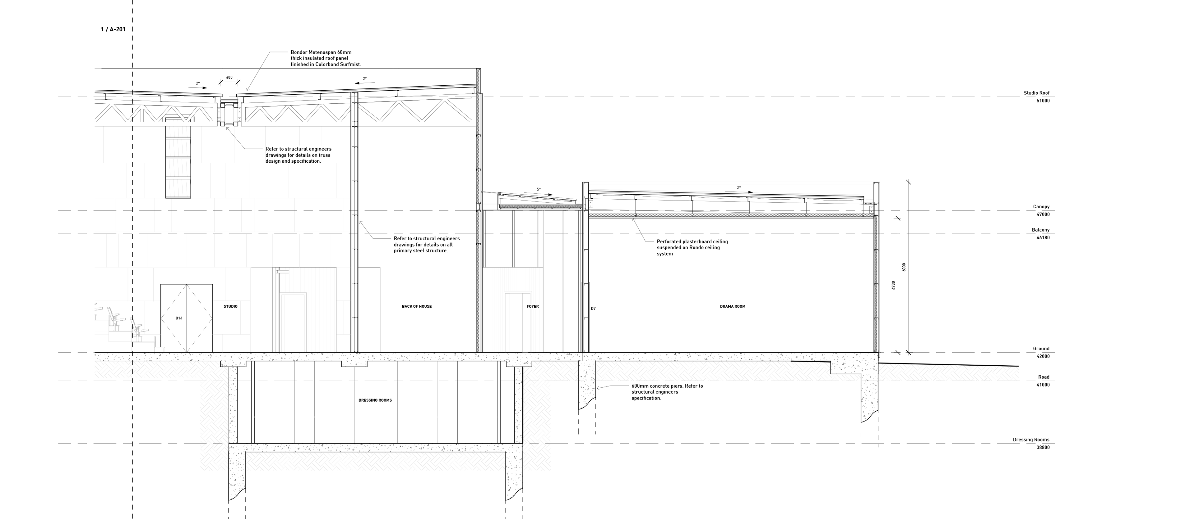
A204 Section B
A302 Elevation East
SD01 Studio Wall Section
SD03 Classroom Wall Detail
Design Studio 5
A101 Master Site Plan
A103 Ground Plan
A202 Section A
A204 Section B
A302 Elevation East
SD01 Studio Wall Section
SD03 Classroom Wall Detail